Dodaj do ulubionych Dodano do ulubionych
WARSZAWA, Zygmunta Krasińskiego

Trzy pokoje z cegły Stary Żoliborz przy Parku.

Miłe, ciche, klimatyczne mieszkanie na zielonym Starym Żoliborzu.

CENA: 895,000 zł = 55,15 m2 ( 16,228 zł/m2)

Piętro: 2/3
Liczba pokoi: 3
Rok budowy: 1969
Stan mieszkania: do remontu.

Forma własności: spółdzielcze własnościowe prawo do lokalu.

CHARAKTERYSTYKA MIESZKANIA

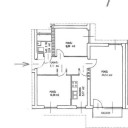
Mieszkanie o powierzchni 55,15 m2 składa się z:
- pokój dzienny - 20,51 m2
- sypialnia - 10,58 m2
- sypialnia - 8,89 m2
- kuchnia - 5,17 m2
- łazienka - 2,24 m2
- przedpokój - 7,76 m2

Powierzchnia dodatkowa: piwnica 2 m2

Budynek: blok w głębi osiedla, cisza, spokój, blok otoczony drzewami.

Czynsz około 850 zł.

Klatka schodowa: czysta.
Media: ogrzewanie: miejskie, centralne ogrzewanie.

Mieszkanie położone jest na terenie Starego Żoliborza.

- 12min. spacerem do stacji metra pl. Wilsona
- 9 min. do stacji metra Marymont
- 4 min. tramwaj, autobus: Broniewskiego, Sady Żoliborskie
- 12 min. Kino Wisła
- 10 min. Teatr Komedia
- 3/12 minut spacerem przychodnie, apteki, restauracje, sklepy.

Doskonała lokalizacja - pełna infrastruktura; blisko szkoły, przedszkola, place zabaw, parki: Kaskada i Sady Żoliborskie.

Wysokość: 260 cm
Typ podłogi: w pokojach i przedpokoju parkiet dąb (do renowacji), kuchnia i łazienka terakota.
Ekspozycja okien: południowy - zachód, północny wschód.
Za oknami ładny zielony dziedziniec z ławeczkami.
Mieszkanie jest ciepłe w zimie i chłodne w lato.

Zapraszam do kontaktu i umówienie się na prezentację.





--------------------------------------------------------------------------------------
Skontaktuj się z nami w celu zapoznania się ze szczegółami oferty. Jeżeli nie udało Ci się znaleźć oferty spełniającej Twoich oczekiwań, zapraszamy do kontaktu bezpośredniego. Nie wszystkie nasze oferty widoczne są w internecie.

Informujemy, iż pomimo wszelkich starań, które poczyniliśmy, aby zaprezentować rzetelne informacje o nieruchomości, przedstawione informacje otrzymaliśmy od właściciela oraz innych osób współpracujących w procesie sprzedaży i mogą one wymagać weryfikacji. Przedstawione materiały wizualne mają charakter poglądowy i stanowią jedynie materiał pomocniczy. Niniejsze ogłoszenie nie stanowi oferty w rozumieniu kodeksu cywilnego i ma charakter informacyjny.

Niniejsze ogłoszenie jest własnością Reals Nieruchomości lub podmiotów współpracujących. Wszelkie prawa zastrzeżone. Kopiowanie, rozpowszechnianie oraz korzystanie z niniejszych materiałów w jakikolwiek inny sposób wykraczający poza dozwolony użytek określony przepisami ustawy z 4 lutego 1994 r. o prawie autorskim i prawach pokrewnych (Dz. U. 1994, nr 24 poz. 83 z późn. zm.) bez pisemnej zgody Reals Nieruchomości lub podmiotów współpracujących jest zabronione i może stanowić podstawę odpowiedzialności cywilnej oraz karnej. Przedstawione materiały stanowią tajemnicę przedsiębiorstwa Reals Nieruchomości lub podmiotów współpracujących w rozumieniu ustawy z dnia 16 kwietnia 1993 r. o zwalczaniu nieuczciwej konkurencji (Dz. U. z 2003 r., Nr 153, poz. 1503 z późn. zm.).


Numer oferty
287137/3376/OMS
Typ transakcji
Sprzedaż
Rynek
WTÓRNY
Powierzchnia
55,15 m2
Cena za m2
16 228,47 zł / m2
Liczba pokoi
3
Piętro
2/3
Klimatyzacja
Nie
Basen
Nie
Garaż
Tak
Osiedle zamknięte
Nie
Rok budowy
1966

Zobacz na mapie

kontakt z agentem

Edyta Staniszewska

Wyślij pytanie w sprawie oferty

Ta strona jest chroniona przez reCAPTCHA i Google Polityka prywatności i Warunki korzystania z usługi.

* Pole wymagane
** Proszę wypełnić pole obowiązkowe e-mail lub telefon

Podobne oferty

Aktualności

Wybrane artykuły